お薦め物件
阪神青木駅歩4分 東7.5m面した新築戸建 青木5180万円(2025-12-23)
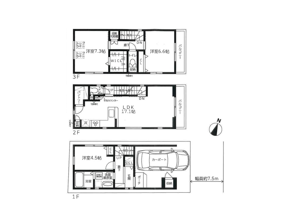
阪神青木駅を南東へ約300m、徒歩4分ほどのアクセスとなります。下町の住宅街、周辺は一戸建て住宅の他、小規模な事務所や工場などが混在するエリアです。本物件は、東側7.5m幅員の道路に面した木造3階建新築分譲住宅、1区画の販売です。ビルトインの駐車場が1台分付いております。延べ床面積100u(車庫面積含む)に、3LDKの間取りを配置、トイレ・バルコニーとも、2階・3階に設置されております。キッチンはL型形状、背面に大容量のパントリーがあるのがおすすめです。3階7.3帖の主寝室には、採光のためのトップライトがあり、またウォークインクローゼットが設置されております。車庫スペースにも、外部収納がございます。前面道路の交通量はそれほどなく、幅員も広いので、車庫入れはスムーズに行えます。本庄中央公園へ、約150mほどの近さも嬉しいものです。



