お薦め物件
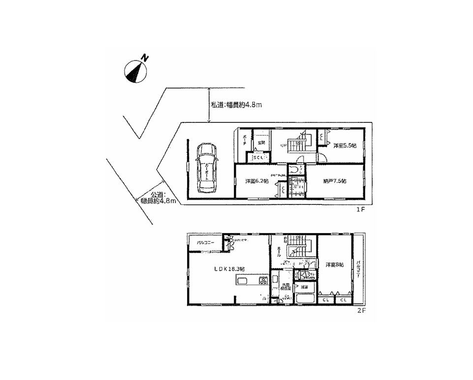
松陰女子高校近く 北西角の新築一戸建 青谷町 7180万円(2025-12-20)
阪急王子公園駅を北へ約900m、登り勾配の道程ですので、登りは徒歩13分ほど、下りは徒歩11分ほどのアクセスとなります。王子動物園山の手、松陰女子学園東側付近の立地です。周辺は木造2階建住宅が建ち並ぶ、閑静な住宅街となっております。本物件は、西側4.8m道路、北側4.8幅員の私道に、面した北西角になります。木造2階建新築分譲住宅、1区画の販売です。ビルトインの駐車場が1台分付いております。延べ床面積134u(車庫面積含む)に、4LDKの間取りを配置、2階がLDKとなっております。キッチン背面に、大容量の食器棚、玄関横のシューズインクローク、1階7.5帖洋室のウォークインクローゼットなど、各所に収納がたっぷりございます。前面私道からの出入りは、道路が隅切りとなっており、窮屈感なく、たやすく出入り可能なのも、おすすめです。室内設置の小物や家具は、ディスプレイ用にて、撤去されます。



