お薦め物件
福井池公園隣接 92u 11階 南西角のリノベ 6280万円(2025-12-18)
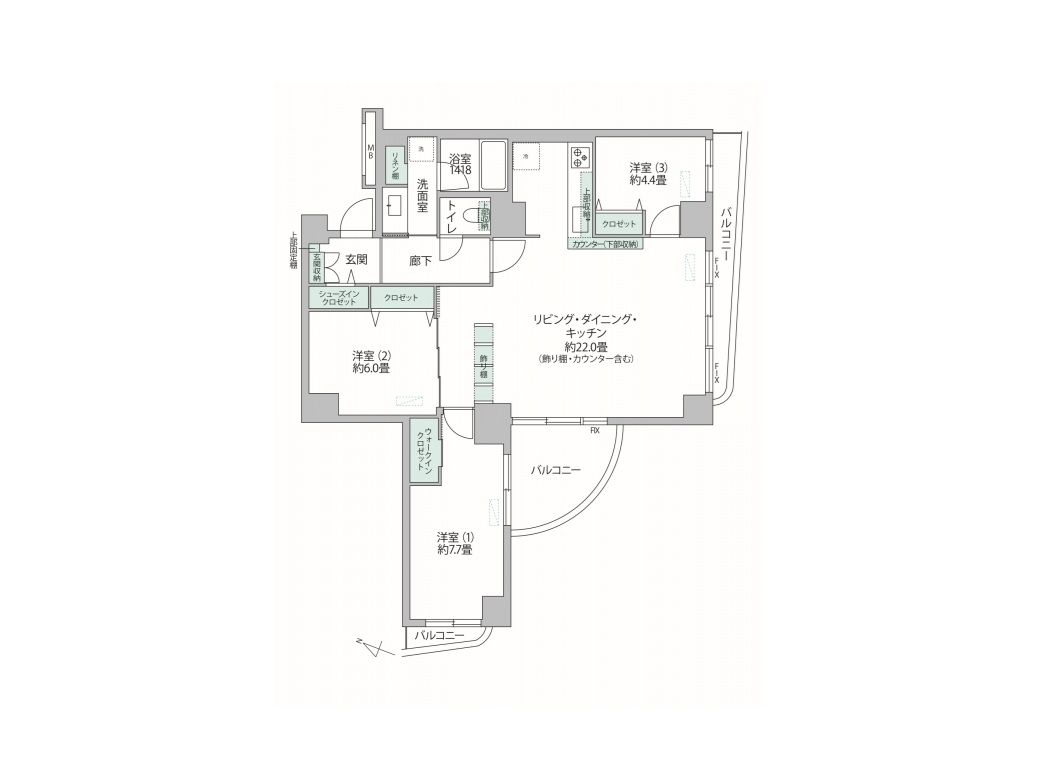
JR摂津本山駅を南西へ約800m、徒歩10分ほど、阪神青木駅を北西へ約700m、徒歩9分ほどのアクセスとなります。福井池公園の西側隣接、周辺は一戸建て住宅の他、分譲や賃貸のマンションなどが混在するエリアです。平成2年建築(築後34年経過)の15階建て、総戸数87戸の中規模マンション、このたび11階部分、南西角のお部屋をリノベーションしました。床・壁・天井の張替は勿論、システムキッチン・浴室・洗面・トイレなどの水回りや給湯器などの設備もすべて新調されております。専有面積92uに、3LDKの間取りを配置、バルコニーが3か所あり、全部の部屋から出入りできます。またそこからは開放的な景観もたのしめます。管理状態が良く、共用箇所のメンテナンスが行き届いているのが人気です。室内設置の小物や家具は、ディスプレイ用にて、撤去されます。



