お薦め物件
設計会社の建てた新築一戸建 住吉山手 借地権 4980万円(2025-12-15)
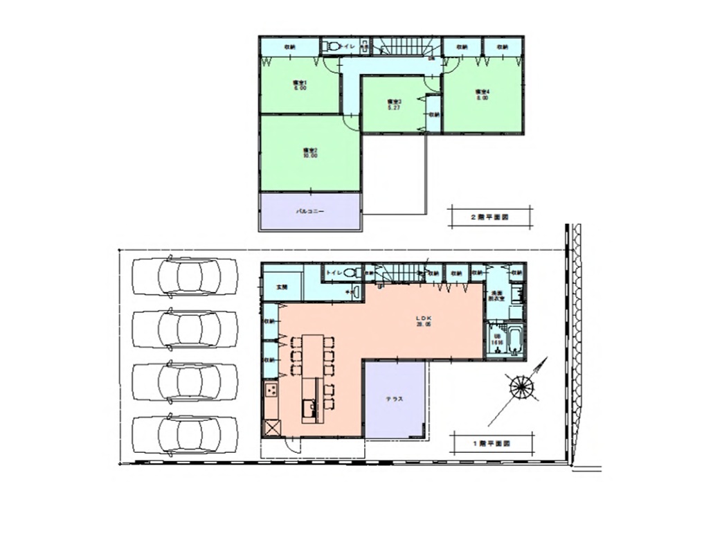
JR住吉駅よりバス乗車約11分、渦森橋バス停より徒歩3分ほどのアクセスとなります。山の手のエリア、周辺は木造2階建の一戸建が建ち並ぶ、閑静な住宅街となっております。本物件は、西側4.4m、南側3m幅員の道路に面した南西角に位置しております。土地は住吉学園の借地権となり、月額13048円の借地料が必要です。借地の期限はなく、更新されます。延べ床面積140uに、4LDKの間取りを配置、お庭にテラスがあり、外部応接間として、御利用出来そうです。敷地面積が60坪ほどありますので、白砂をまいたスペースもございます。3階には4つの洋室が、独立した配置になされております。主寝室10帖にはバルコニーもあり、神戸港を見渡す景観を楽しめます。建物前面スペースに、3〜4台分の駐車スペースもございます。室内設置の小物や家具は、ディスプレイ用にて、撤去されます。



