お薦め物件
護国神社近くの新築一戸建 篠原北町4丁目 6980万円(2025-12-13)
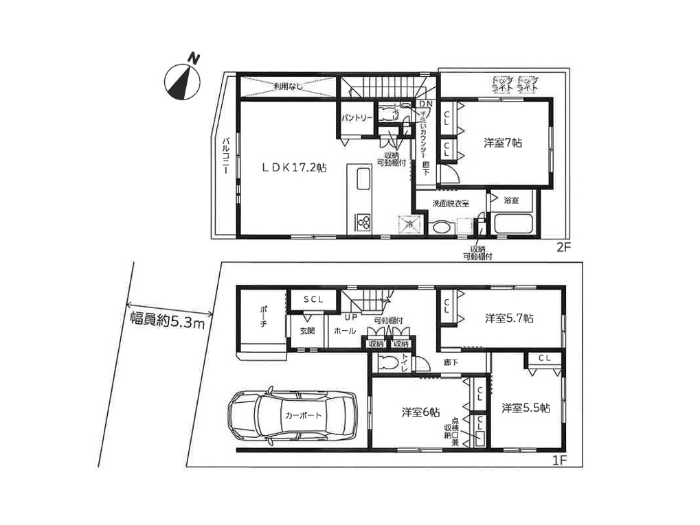
阪急六甲駅を北西へ約1.1キロ、なだらかな登り勾配の道程で徒歩15分ほどのアクセスとなります。2番系統のバス路線では、バス乗車6分、護国神社前バス停より徒歩1分ほどのアクセスも可能です。山の手のエリア、周辺は一戸建て住宅が建ち並ぶ閑静な住宅街となっております。仙谷川東側道路に面する立地です。木造2階建新築分譲住宅、2区画販売の南側の棟です。ビルトインの駐車場が1台分付いております。延べ床面積120uに、4LDKの間取りを配置、1階に洋室3つ、2階にLDKと7帖の主寝室を設置しております。17.2帖サイズのLDKは、広く河川の方に面しており、爽やかな景観と空気を楽しめます。キッチン横の大容量のパントリーや、各所の収納など、主婦目線での間取りがおすすめです。



