お薦め物件
阪急御影駅歩4分 97u 南西向きリフォーム済 8680万円(2025-12-04)
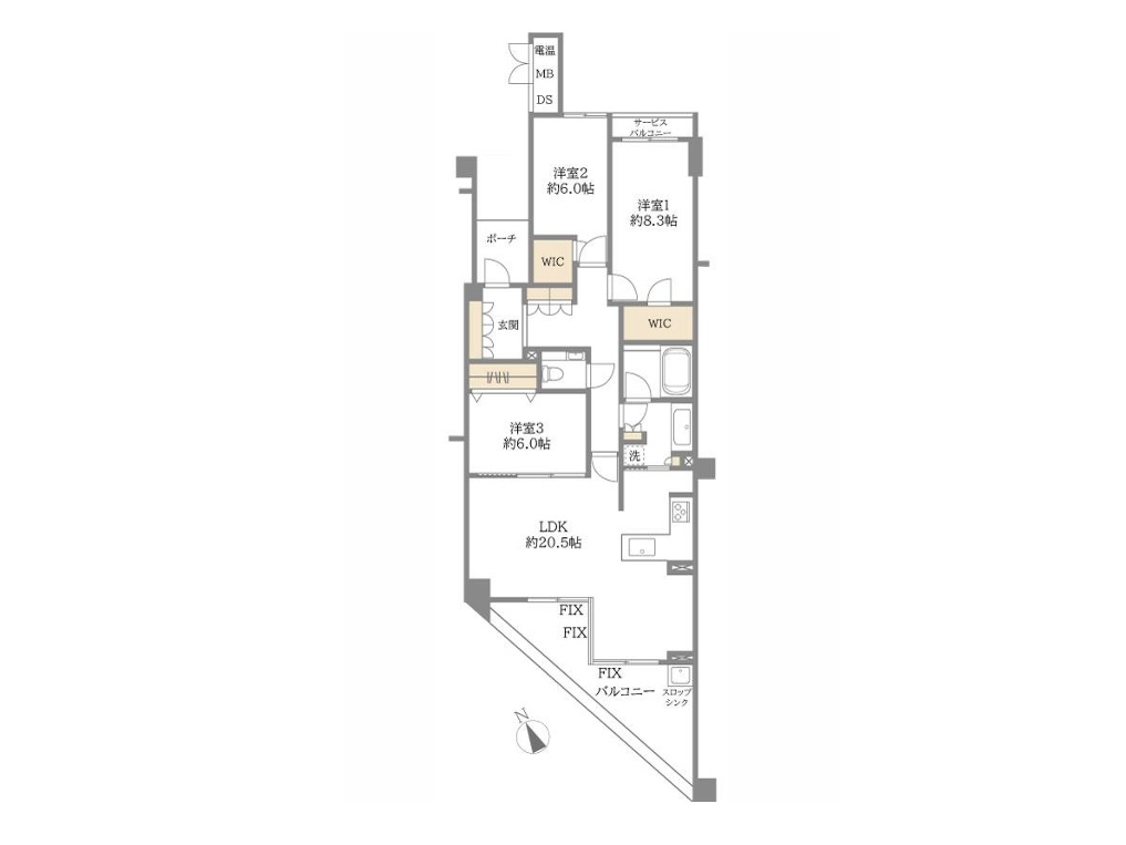
阪急御影駅を北東へ約300m、徒歩4分ほどのアクセスとなります。駅近い立地ですが、商業施設などなく、閑静な住環境のエリアです。平成20年建築(築後17年経過)の5階建て、総戸数38戸の小規模マンション、このたび4階部分(上記にお部屋がない最上階箇所)、南西向きのお部屋を全面的にリフォーム致しました。システムキチンや浴室・洗面所・トイレなどの水回りは新調されております。専有面積97uに、各お部屋6帖以上サイズの3LDKの間取りを配置、20帖サイズのLDKは、開放感がございます。キッチンはL型で、背面に洗面所・お風呂などがあり、コンパクトな家事動線がおすすめです。バルコニーの奥行きがあり、スロップシンクなども設置されております。管理状態がとても良く行き届いており、また高級感漂う雰囲気が素敵です。室内設置の小物や家具は、ディスプレイ用にて、撤去されます。



