お薦め物件
内外装全面改装された中古一戸建 記田町4丁目 4190万円(2025-10-19)
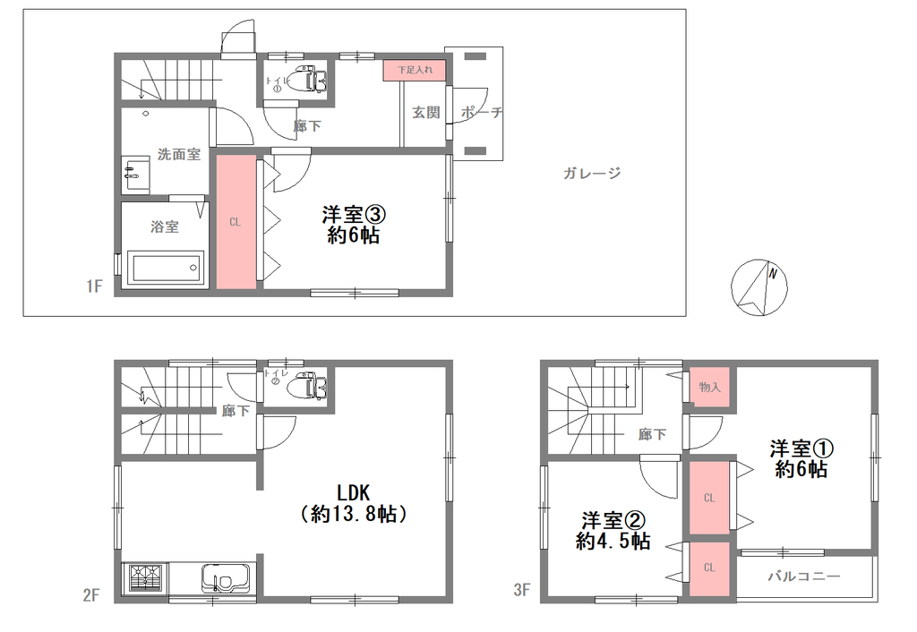
阪神石屋川駅を北西へ約480m、徒歩6分ほど。JR六甲道駅を南東へ約1キロ、徒歩15分ほどのアクセスとなります。国道2号線の少し南側のエリアで、周辺は一戸建ての住宅の他、小規模な店舗や事務所などが混在するエリアとなっております。本物件は、北側3.5m幅員の私道に面した平成10年建築(築後27年経過)の木造3階建中古住宅、このたび内外装すべてリノベーション工事を行っております。外壁塗装や天井の補修の他、床・壁・天井の張替は勿論、システムキッチン・浴室・洗面・トイレなどの水回りや給湯器などの設備もすべて新調されております。築年数を感じさせない仕上りとなっております。延べ床面積84uに、3LDKの間取りを配置、トイレは1・2階の2箇所、バルコニーは3階に設置されております。室内設置の小物や家具は、ディスプレイ用にて撤去されます。



