お薦め物件
本庄中央公園近く 62u 1階 東向きのリノベ 4080万円(2025-10-11)
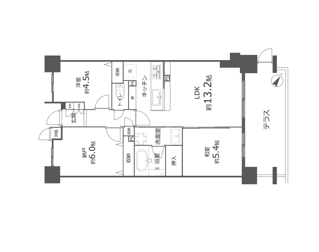
阪神青木駅を東南へ約500m、徒歩7分ほどのアクセスとなります。阪神電車と国道43号線の中間付近、東側は幹線道路。周辺には、本庄中央公園や、本庄グランドなどがございます。平成30年建築(築後7年経過)の10階建て、総戸数65戸の中規模マンション、このたび1階部分、東向きのお部屋をリフォームしました。専有面積62uに、3LDKの間取りを配置、少し広めのテラスが快適です。幹線道路沿いということを配慮し、リビングや和室の窓サッシは、2重となっております。キッチン横に洗面所・お風呂・トイレなど水回りが集中しており、家事動線がコンパクトです。お部屋位置も、エントランスから一番近いのも嬉しいものです。管理費・修繕積立金も、比較的安価な設定となっております。南へ約450mほどで、大規模なショッピングモールがあるのも便利なものです。



