お薦め物件
JR住吉駅前 16階 68u 南西向きのリノベ 6490万円(2025-10-02)
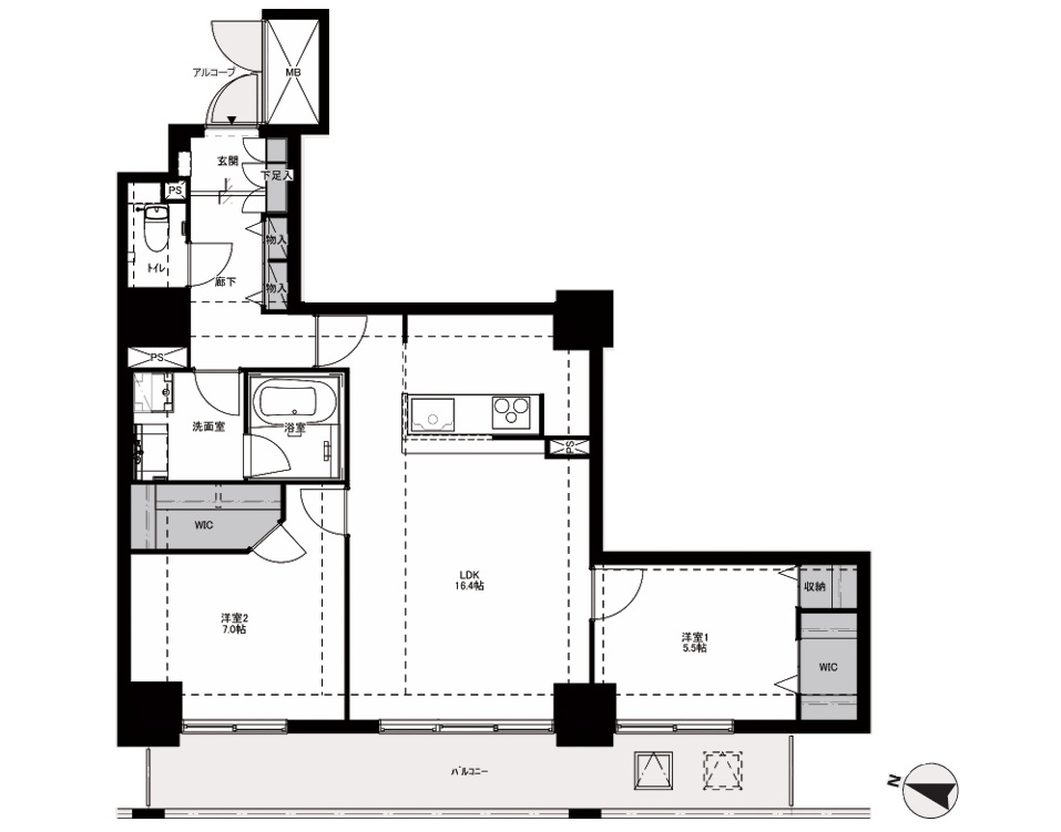
JR住吉駅南側すぐ、駅前立地です。階下に、飲食店やスーパー、コンビニなどが入店している複合型商業施設がございます。平成14年建築(築後23年経過)の28階建て、総戸数243戸の大規模マンション、このたび16階部分、南西向きのお部屋をリノベーションしました。床・壁・天井の張替は勿論、システムキッチン・浴室・洗面・トイレなどの水回りや給湯器などの設備もすべて新調されております。専有面積68uに、2LDKの間取りを配置、バルコニーからは開放的な景観を楽しめます。南側が国道2号線に面しており、若干車両通過音がします。たっぷり収納可能なウォークインクローゼットがそれぞれの洋室に設置されているのが嬉しいものです。お仕事帰りが遅い、共稼ぎのご夫婦に、おすすめです。



