お薦め物件
4階 北・西・南角 68u ロフトのあるリノベ 4980万円(2025-09-27)
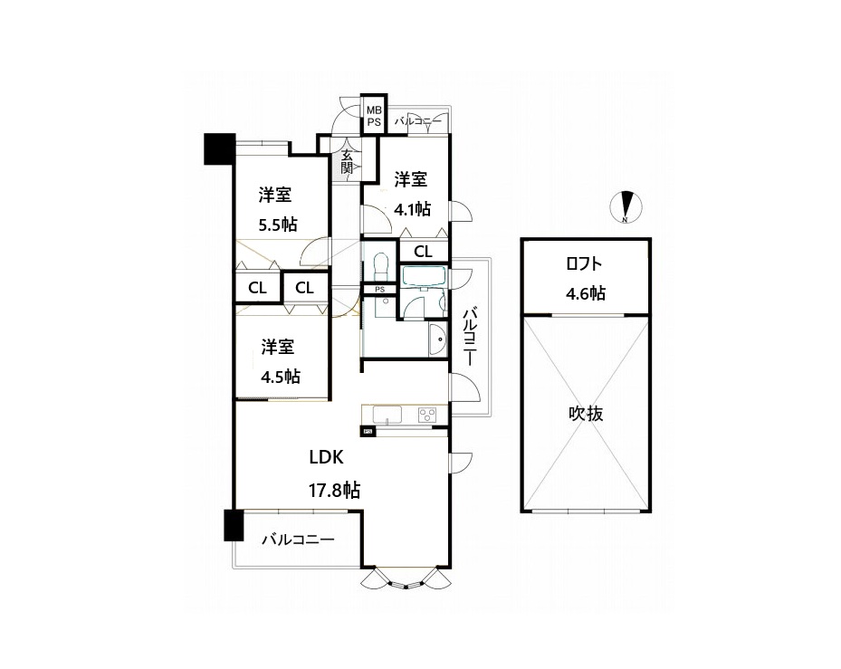
JR摂津本山駅を東へ約650m、徒歩6分ほどのアクセスとなります。周辺は木造2階建の一戸建て住宅の他、小規模な分譲や賃貸のマンションなどが混在する閑静な住宅街となっております。平成8年建築(築後29年経過)の5階建て、総戸数26戸の小規模マンション、このたび4階部分のお部屋をリノベーションしました。床・壁・天井の張替は勿論、システムキッチン・浴室・洗面・トイレなどの水回りや給湯器などの設備もすべて新調されております。特徴的なのは、上階にロフトがあり、リビングの天井高がとても高くなっていることです。専有面積68uに、3LDKの間取りが配置されており、北・西・南の3か所にバルコニーが設置されております。北側のバルコニーは奥行きがあり、広さを感じます。お風呂にも窓があり、キッチン横から、西側のバルコニーへの出入りが可能です。



