お薦め物件
テラスが素敵な新築一戸建(借地権) 東灘区渦森台4980万円(2025-09-20)
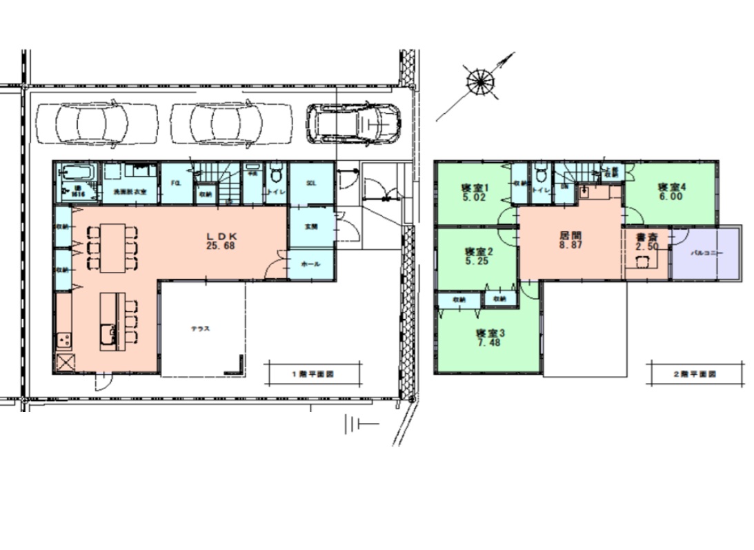
JR住吉駅よりバス乗車19分、渦森台終点バス停より徒歩7分ほどのアクセスとなります。周辺は市街地開発された街並みが整然とした木造2階建住宅が建ち並ぶエリアです。本物件は、東側6m幅員の道路に面した木造2階建新築分譲住宅、1区画の販売です。縦列で2〜3台分の駐車スペースがございます。敷地面積は58坪ほど、住吉学園の借地権です。ブラックな外観が際立っており、お庭もございます。延べ床面積137uに、4LDKの間取りを配置、リビング前のテラスと、2階階段上がった箇所にあります居間のような空間が特徴的です。東方面には、六甲山の景観を、南は大阪湾を見渡す景観をそれぞれ楽しめます。キッチン背面の大容量の収納庫が嬉しいものです。



